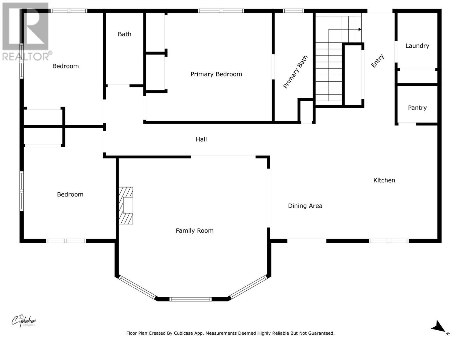
Discover the ease of single-storey living in this spacious 4-bedroom, 3-bathroom rancher nestled on a private .68-acre property in Christina Lake. Built in 2007, this well-appointed home features A/C, on-demand hot water, a gas fireplace, and a high-efficiency gas furnace. The thoughtfully designed layout is perfect for a comfortable family residence or a seasonal vacation getaway. The main floor offers 3 bedrooms, 2 full bathrooms, and a dedicated laundry room. The fully finished daylight walkout basement with a separate entrance presents tremendous potential with a bedroom, full bathroom, huge rec room, and is plumbed for a future suite. Enjoy gorgeous, unobstructed north-facing mountain and valley views from the vaulted ceilings and oversized windows, or from the expansive 50 ft deck, which also offers a glimpse of the lake. Experience ultimate privacy on this hidden oasis just minutes from the beach, and the convenience of access from both Chase Rd and Highland Rd. Come home to the lake! Call/text your agent to view! (id:4069)
Address
242 Chase Road
List Price
$739,000
Property Type
Single Family
Type of Dwelling
Single Family
Style of Home
Ranch
Transaction Type
Sale
Area
British Columbia
Sub-Area
Christina Lake
Bedrooms
4
Bathrooms
3
Floor Area
3,024 Sq. Ft.
Lot Size
0.68 Sq. Ft.
Year Built
2007
MLS® Number
10347326
Listing Brokerage
Grand Forks Realty Ltd
Basement Area
Full
Postal Code
V0H1E0




































