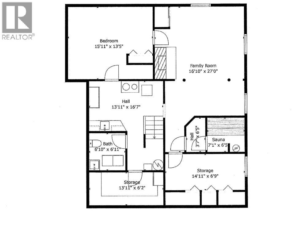
Lots of recent upgrades including bathroom, flooring, trim + paint. Lot size is .2 acres. 4-bedroom, 2-bathroom. Short, 1 block street. Private fenced back yard. Over 2400 sq ft rancher includes full basement. New main bathroom, 2 fireplaces. Large basement sauna with its own shower. Basement has 2 storage areas, 1 for cold storage. Completely landscaped lawns and yard for your enjoyment +/or entertaining. 2 garden sheds + a greenhouse area. Close to shopping, schools, restaurants, coffee shops, hospital, + parks. Close to all recreation including arena, pool, curling, ball fields + more. Newer natural gas furnace. It's all there + move-in ready. (id:4069)
Address
7551 23rd Street
List Price
$495,000
Property Type
Single Family
Type of Dwelling
Single Family
Style of Home
Ranch
Transaction Type
Sale
Area
British Columbia
Sub-Area
Grand Forks
Bedrooms
4
Bathrooms
2
Floor Area
2,476 Sq. Ft.
Lot Size
0.2 Sq. Ft.
Year Built
1964
MLS® Number
10372331
Listing Brokerage
Grand Forks Realty Ltd
Basement Area
Full
Postal Code
V0H1H2
Site Influences
View





















