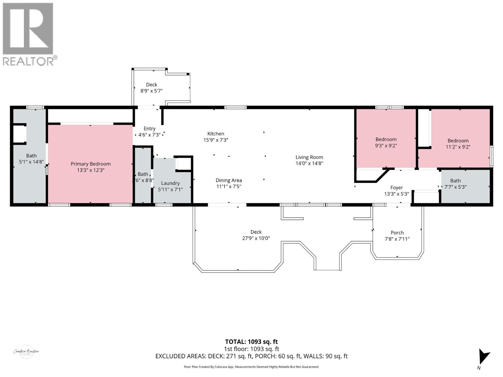
This well-maintained 3 bedroom, 3 bathroom manufactured home in Grand Forks offers comfortable, updated living with the added benefit of no future development next door, as the neighbouring lot is crown land. Recent upgrades include new flooring and updated appliances, making this home move-in ready. Enjoy north-facing decks perfect for soaking up the afternoon sunshine, all while being conveniently located close to town amenities, schools, and shopping—an ideal blend of practicality, value, and location. Call your Local Real Estate Agent today! (id:4069)
Address
6473 5th Street
List Price
$329,000
Property Type
Single Family
Type of Dwelling
Single Family
Transaction Type
Sale
Area
British Columbia
Sub-Area
Grand Forks
Bedrooms
3
Bathrooms
3
Floor Area
1,216 Sq. Ft.
Lot Size
0.29 Sq. Ft.
Year Built
1997
MLS® Number
10373579
Listing Brokerage
Grand Forks Realty Ltd
Postal Code
V0H1H0

































