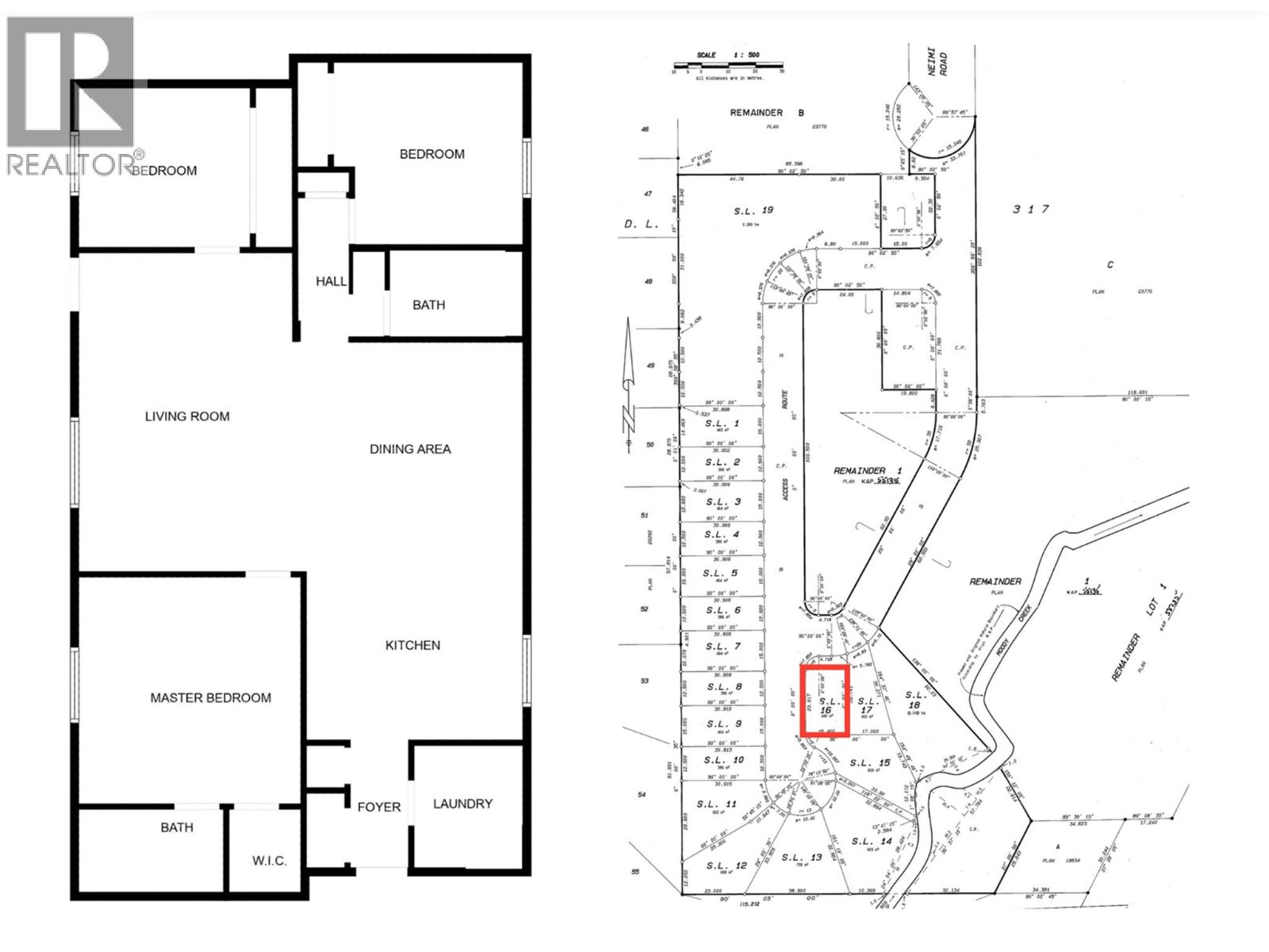
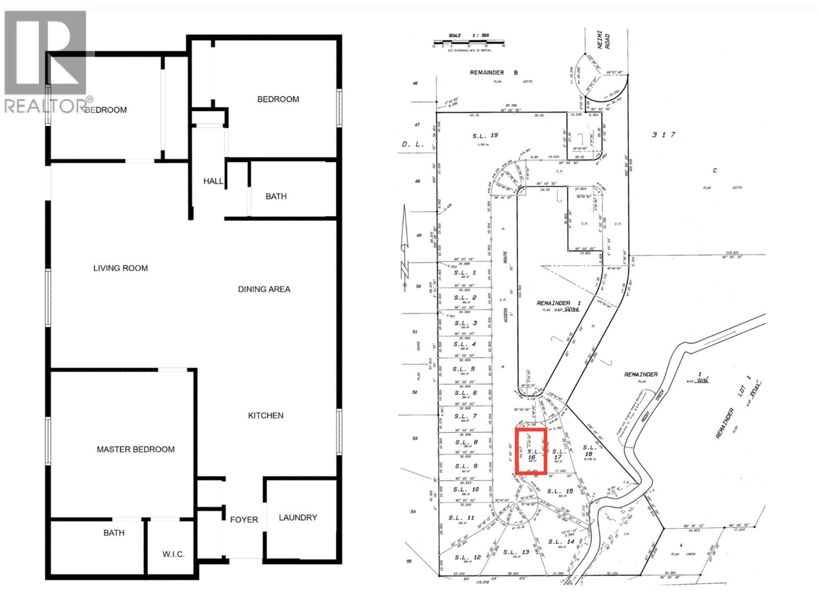
This inviting three-bedroom, two-bathroom home in Moody Creek Estates offers a rare opportunity for a life of ease and versatility. Perfectly situated on a quiet cul-de-sac, this bright and airy residence features a spacious primary suite with a walk-in closet and private ensuite. A unique highlight is the finished concrete crawl space with interior access, providing exceptional storage solutions. Outdoor living is effortless on the generous 12x25 ft cement patio, which features a private gazebo and a convenient gas line ready for your BBQ. Inside, the living room is also plumbed for gas, making the future addition of a cozy fireplace simple and efficient. For the hobbyist, the 14x20 ft garage is a standout asset, equipped with a sub-panel, workbench, and ample natural light. The mature, low-maintenance landscaping allows you to spend your time enjoying the short two-minute drive or ten-minute stroll to the beautiful Christina Lake Provincial Park beach! With no age restrictions at Moody Creek Estates, this property is a fantastic investment for everyone from first-time buyers to retirees looking to downsize. The professionally managed strata ensures a secure, carefree lifestyle in a vibrant community. Contact your local agent to schedule a viewing of this beautiful home today! (id:4069)
Address
1500 NEIMI Road Unit# 16
List Price
$419,000
Property Type
Single Family
Type of Dwelling
Manufactured Home
Transaction Type
Sale
Area
British Columbia
Sub-Area
Christina Lake
Bedrooms
3
Bathrooms
2
Floor Area
1,296 Sq. Ft.
Lot Size
0.11 Sq. Ft.
Year Built
2000
Maint. Fee
$133.00
MLS® Number
10378067
Listing Brokerage
Grand Forks Realty Ltd
Basement Area
Crawl space
Postal Code
V0H1E2
Site Influences
Recreation
Features
Cul-de-sac, Level lot, Private setting
Amenities
Clubhouse





















